Aktualności
Wróć 
Źródło Rusinów
Ujęcie wody Rusinów w Mikołowie
Mikołów, 12.08.2024r.
UJĘCIE WODY „RUSINÓW’ – CHARAKTERYSTYKA
RYS HISTORYCZNY źródła, które prawie 100 lat zaopatruje mieszkańców w wodę.
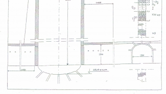
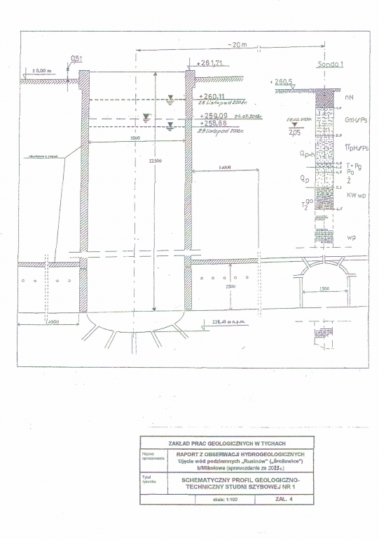
Eksploatowana studnia szybowa (schemat w załączeniu) wydrążona została przez Kopalnię Węgla Kamiennego „Bolesław Śmiały” w 1928 roku. Jest to ujęcie kopano-sztolniowe z dwiema poziomymi sztolniami w obudowie murowanej z cegły. Głębokość szybu (studni zbiorczej) wynosi ok. 22,5 m, średnica 5 m, sztolnie dopływowe są długości ok. 14 m (wg innych materiałów posiadają długość 17 i 18 m), obudowane są cegłami z perforacją otworową dla zwiększenia dopływu wód podziemnych, posiadają przekrój 2,5 x 2,5 m w świetle i prowadzone są przy dnie szybu w kierunku północnym i południowym. Rzędna krawędzi obudowy studni wynosi 261,71 m n.p.m. i wznosi się ponad poziom posadzki budynku – tj. ponad poziom terenu otaczającego o 0,51 m. Budynek, w którym znajduje się studnia jest obiektem murowanym, jednokondygnacyjnym o powierzchni ogólnej 223 m2.
W głównej hali budynku zabudowana jest suwnica do montażu urządzeń, aparatura sterownicza agregatów pompowych oraz zawory, klapy zwrotne i wodomierze. Studnia przykryta jest stalowymi płytami, które tworzą pomost. W studni zabudowane są trzy pompy głębinowe firmy Grundfos zawieszone na stalowych rurociągach tłocznych na głębokości ok. 17 – 18 m. Pompy pracują naprzemiennie, pomiar objętości przepływu wody może być dokonywany na dwóch wodomierzach zainstalowanych na rurach tłocznych lub na wyświetlaczu urządzenia sterującego.
Zasoby eksploatacyjne ujęcia rozpoznane pompowaniem pomiarowym w 2013 roku ustalono na Qe = 80 m3/h przy depresji se = 8,20 m. Studnią ujmowane są zawodnione wapienie triasu środkowego przykryte ponad metrową warstwą czwartorzędowych – plejstoceńskich pospółek i żwirów wodnolodowcowych. Na tym wodonośnym kompleksie spoczywają nierozdzielone osady plejstocenu i holocenu wykształcone jako próchniczne gliny pylaste i pyły piaszczyste z laminami pisaku, w spągu z warstewką zapiaszczonych torfów.
W celu zwiększenia wydajności studni wykonano w okresie budowy ujęcia dwa stawy infiltracyjne zlokalizowane obok pompowni. Stawy zasilane były pierwotnie przez wody potoku Promna, jednak od ponad trzydziestu pięciu lat zaniechano tego rodzaju rozwiązań z uwagi na częste występowanie zrzutów zanieczyszczeń do wód potoku. Obecnie zbiorniki powierzchniowe zasilane są okresowo przez płytkie wody gruntowe i opady atmosferyczne. Zbiorniki w niewielkim stopniu dodatkowo zasilają warstwę wodonośną poprzez infiltrację.
OGÓLNE INFORMACJE
Woda podziemna eksploatowana studnią szybową ujęcia „Rusinów” („Śmiłowice”) przeznaczona jest na zaopatrzenie ludności w wodę pitną i na potrzeby gospodarcze w sołectwach gminy Mikołów. Woda tłoczona jest do następujących jednostek administracyjnych w obrębie Mikołowa (załączona mapa):
- sołectwo Bujaków,
- sołectwo Paniowy (wraz z przysiółkiem Rusinów),
- sołectwo Borowa Wieś,
- sołectwo Śmiłowice.
Ogółem zasilanie wodą pitną z wodociągu gminnego obejmuje liczbę 2 367 przyłączy (łącznie odbiorcy indywidualni, podmioty gospodarcze i obiekty użyteczności publicznej).
Obecnie ilość wody pobierana z ujęcia nie przekracza ustalonych w pozwoleniu wodnoprawnym zasobów eksploatacyjnych ujęcia i wynosi:
Qmax.s = 0,022 m3/s
Qśrd = 1 500 m3/d
Qdop.r = 464 443 m3/r.
Ilość pobieranej wody przedstawiono w poniższej tabeli.
Rzeczywista ilość pobieranej wody z ujęcia w latach 2013-2023 r.
|
Rok |
m3/r |
m3/d |
|
2013 |
387 036 |
1 060,37 |
|
2014 |
360 329 |
987,2 |
|
2015 |
348 242 |
954,09 |
|
2016 |
319 841 |
876,28 |
|
2017 |
310 490 |
850,66 |
|
2018 |
283 787 |
777,5 |
|
2019 |
264 419 |
724,44 |
|
2020 |
241 645 |
662,04 |
|
2021 |
255 743 |
700,67 |
|
2022 |
262 752 |
719,87 |
|
2023 |
244 172 |
668,96 |
|
średnio |
298 041,5 |
816,55 |
|
max |
387 036 |
1 060,37 |
W odpowiedzi na zgłoszenia mieszkańców dotyczące znacznej twardości wody (jednak nie przekraczającej wartości określonych w Rozporządzeniu dot. jakości wody), w 2018 roku przeprowadzono modernizację obiektów technologicznych wchodzących w skład systemu dystrybucji wody na terenie Gminy Mikołów efektem czego powstał system mieszania wody pochodzącej z Ujęcia oraz GPW, który swój początek ma na skrzyżowaniu ulic Gliwickiej i Jesionowej. W wyniku rzeczonej modernizacji uzyskano mniejszą twardość wody oraz dużo większą niezawodność dostaw wody do Odbiorców.
Woda z ujęcia przed wprowadzeniem do sieci wodociągowej podlega dezynfekcji podchlorynem sody, który dozowany jest bezpośrednio do studni.
W ramach kontroli jakości wody, woda z Ujęcia badana jest średnio co 2 tygodnie przez akredytowane laboratorium. Ilość badań, zarówno w latach ubiegłych jak i bieżącym, jest dużo większa niż wynika to z Rozporządzenia dotyczącego jakości wody. Ponadto, woda jest również badana przez Państwowego Powiatowego Inspektora Sanitarnego w Tychach.
Ujęcie, jako źródło wody stanowi doskonałe zabezpieczenie dostaw wody (oczywiście nie do wszystkich odbiorców) w przypadku wystąpienia problemów po stronie GPW lub innych sytuacji kryzysowych. Wodę także kupują sąsiedzi Mikołowa.
INFORMACJE DOTYCZĄCE JAKOŚCI WODY
Informacje na temat jakości wody, w tym dane dotyczące wyników badań oraz twardości wody można znaleźć na stronie internetowej Zakładu Inżynierii Miejskiej Sp. z o.o. w zakładce „Woda i kanalizacja”. Pod linkiem: https://www.zim.com.pl/woda-i-kanalizacja/jakosc-wody
Załączniki:
- schemat ujęcia Rusinów,
- obszar zasilany z ujęcia Rusinów,
- zdjęcia.











